MODE DE COTATION
Résumé de section
Chapitre 5: EXÉCUTION MATÉRIELLE D’UNE COTATION
2- MODE DE COTATION
2.1- Modes de cotation
Après un choix raisonné des éléments à coter, la disposition des cotes sur un dessin résulte généralement de l’emploi de divers mode de cotation. On distingue sur les figures suivantes les fautes à éviter (à gauche) et la cotation normale (à droite).
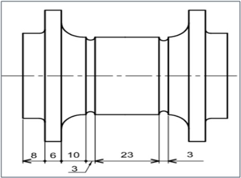
Cotation en série
Aligner les lignes de cote si possible.
Cotation en parallèle
Une ligne de cote ne doit pas être coupée par une autre ligne (les lignes d’attaches peuvent se couper entre elles). La ligne cotant le diamètre (Ø20) doit passer par le centre du cercle.
Cotation de surface trapézoïdale
On ne doit jamais aligner une ligne de cote à une ligne de dessin. On ne doit jamais utiliser un axe comme ligne de cote.
Cotation de diamètre
Les cotes ne doivent jamais être coupées par une ligne (ligne de cote, trait d’axe, trait fort, …).
D’autres méthodes de cotation de diamètre

Figure 52 : Cotation possible de diamètre
Cotation au cas où l’on manque de place
Dans le cas où l’on manque de place, on peut inscrire la valeur de la cote au-dessus du prolongement de la ligne de cote et de préférence à droite. Si cela n’est pas possible, utiliser une ligne de repère.

Figure 53 : Cotation au cas où l'on manque de place
2.2- Cotation de grands diamètres
Cette méthode facilite la lecture des cotes en évitant une trop importante superposition des chiffres.