Cours de base(html)
Résumé de section
Cisaillement simple
I-L’exemple de la liaison articulée :
Un tirant (1) est articulé sur un support (2) par l’intermédiaire d’un axe cylindrique(3). Ce dispositif réalise ce que l’on appelle une liaison pivot. Le tirant transmet un effort F perpendiculairement à l’axe (3) tout en maintenant la libre rotation autour du support. Aucun moment fléchissant n’est transmis au support.
où celui-ci est considéré comme négligeable. L’axe est donc sollicité par un effort tangent à sa section droite AB ou CD : ces deux sections subissent un cisaillement dit simple.

II- Contrainte de cisaillement et déformation ; loi de Hooke relative au cisaillement :
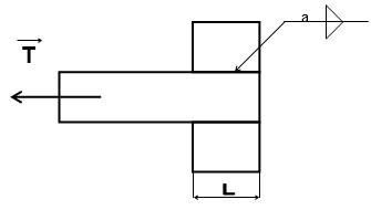
Considérons l’exemple de l’articulation en porte à faux :
Isolons l’axe 3.
En A il reçoit de la part du support 2 une force orientée vers le bas :
![]()
En B, il reçoit de la part du tirant 1 une force orientée vers le haut :
![]()

(Note : la distance dL est considérablement agrandie sur le dessin)
L’axe est donc soumis à un cisaillement entre A et B. L’effort tangentiel à la section droite est appelé plus généralement effort tranchant T.
Les plans d’action des forces sont inévitablement très légèrement décalés de dL ce qui entraine un glissement des sections droites les unes par rapport aux autres d’un angle g .
On suppose que la contrainte de cisaillement simple est répartie uniformément sur toute la surface cisaillée. La contrainte t est le rapport de l’effort tranchant T sur la section cisaillée d’aire S :

Unités : t en N.mm-2 ou MPa ; T en N ; S en mm2
Un élément de surface autour d’un point M subit une distorsion comme le montre la figure ci-dessous :

L’équilibre de l’élément impose l’égalité des contraintes tangentielles sur chacune des faces de l’élément.
La loi de Hooke stipule que dans le domaine élastique, la contrainte de cisaillement t est proportionnelle à l’angle de glissement, soit :
![]()
Avec t= contrainte tangentielle (N.mm-2 ou MPa)
g =angle de glissement (radian)
(Remarque :cette relation est analogue à la loi de Hooke en traction ou compression )
![]()
G : module d’élasticité transversal (N.mm-2 ou MPa).C’est une constante du matériau.
Pour les métaux G=0,4E (environ)
III- Vérification des constructions :
On utilise le même raisonnement qu’en traction :
La contrainte t de cisaillement dans la section cisaillée doit être inférieure à la contrainte admissible au cisaillement du matériau tadm ou RPG ( g comme glissement)

RPG : résistance pratique au glissement ou cisaillement.
Reg=résistance limite élastique au cisaillement (analogue à Re)
Rg : limite à la rupture par cisaillement (analogue à Rr)
S :coefficient de sécurité
Remarque : Reg et Rg sont des données obtenues par essais des matériaux. Pour la plupart des métaux et alliages, en première approximation :

En effet, pour les matériaux comme l’acier, la rupture est obtenue par cisaillement avec des contraintes environ deux fois plus faibles qu’en traction ou compression. Pour les cas où le vecteur contrainte a une direction quelconque. On peut constater que c’est la composante tangentielle du vecteur contrainte qui est la cause de la rupture
Les outils de coupe (ciseaux), fonctionnent d’ailleurs par cisaillement !
IV-Application :
1-Articulations :
Calculs relatifs aux 2 systèmes d’articulation proposés ci dessus :
a-Détermination du diamètre d1 minimum de l’axe cylindrique de l’articulation en porte à faux
sachant que Reg =Re/2=120MPa ; F=10.000daN ; on prendra s=10.
Solution :
T=F=100.000N

b-Même calcul en considérant le montage en chape :
Ces articulations sont disposées au pied d’une structure porteuse d’immeuble.
(photos prise à l’hôpital de Laon le 8/5/2014)


Solution :
La force F est reprise par 2 sections droites en parallèle; T=F/2=50000N.

Ce calcul montre l’utilité de mettre plusieurs sections cisaillées en parallèle.
Le diamètre mesuré de l’axe est de 80mm. Le montage en porte à faux est à exclure dans ce cas car la charge est trop importante. L’axe est immobilisé longitudinalement par une goupille.
2-Assemblages rivetés :
Détails technologiques :
Les assemblages rivetés sont indémontables ; ils sont fréquemment utilisés en construction métallique pour réaliser les poutres treillis (pour les parties fabriquées en atelier). Les rivets en acier à une seule tête sont portés au rouge par un foyer à 1200°C. Ils sont ensuite insérés dans les trous d’assemblage. Une presse vient alors écraser le cylindre pour former la tête opposée demi-sphérique. En se refroidissant La contraction du métal entraine une forte pression entre les pièces 1 et 2 qui maintient l’assemblage. Il existe aussi des rivets de plus petits diamètres en acier haute résistance qui sont posés à froid.
Au montage sur le chantier on réalise les assemblages définitifs par boulonnage).

Exemple de calcul:
Les barres (1) et (2) sont liées par un rivet (3) en acier de diamètre d=10mm et de résistance élastique au glissement Reg=120MPa. On prendra un coefficient de sécurité de s=5. Déterminer l’effort F admissible dans les barres sachant que l’assemblage possède 3 rivets alignés.
Calcul de la résistance pratique au glissement (ou cisaillement ) du rivet RPG:
![]()
Effort maximum dans les barres (2) et (1) sachant qu’il y a 3 sections S de rivets

Résistances
Elles découlent de l’essai de traction (qui donne Re et Rm).
Pour les aciers ordinaires et les alliages légers, on prendra Rg = Rm / 2
Pour les aciers traités, Rg = Rm x 0,7
Résistance pratique à utiliser : Rpg = Rg / s
s : coefficient de sécurité
Contrainte
Les forces extérieures qui agissent sur la poutre créent des contraintes à l’intérieur du matériau.
Ces contraintes sont en tous points égales et tangentielles.
Ou, dans le seule domaine élastique (Z1) :

G est le module d’élasticité transversal :
G = 0,4 E
γ est l’angle de déformation
(voir plus bas)
Condition de résistance
Pour que la poutre résiste (pas de rupture), il faut que : Contrainte < Résistance pratique

Déformations

La déformation est un glissement relatif des sections cisaillées :
γ est donc la tangente de l’angle de déformation.
Pour les petits angles, la tangente est assimilable à l’angle en radian.
Cas particuliers
DÉCOUPAGE, POINÇONNAGE
Il faut dépasser la résistance au cisaillement

CISAILLEMENT DES SOUDURES

Cote d’une soudure

Section cisaillée :
![]()

Attention:
Rpg de la soudure !
AXE D’ ARTICULATION EN CHAPE

En cisaillement , il faut toujours commencer par compter le nombre de sections cisaillées et les tracer sur le dessin.
Lorsque l’articulation est en chape, il y en a 2.

ASSEMBLAGE RIVETÉ
La formule utilisée pour déterminer le diamètre d’un rivet est :

La section cisaillée est :

